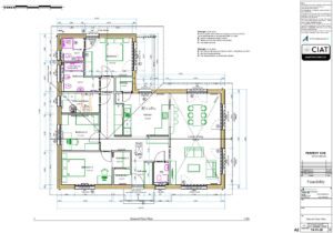
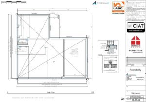
House design building plans Trowbridge
Bungalow design building plans Trowbridge – Our client had a very large garden and they wanted us to obtain permission for a new build Dan-Wood timber frame type dwelling. We obtained all their approvals and the project is successfully completed. Check out our proposed plans for building new home on the website and get some insight about our work. For any queries, call us at 01452 413310.









