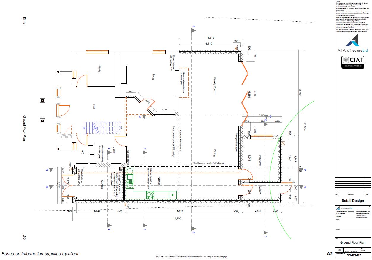
Extension building plans Cheltenham
Our client provided us with a set of paper drawings for a design that was approved for Planning Permission by another Architect. We were commissioned to make revisions and extend this design, obtain a new Planning Permission and to produce constructional drawings and obtain Building Regulations which we successfully obtained.












