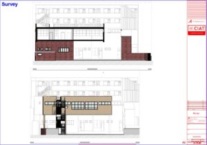
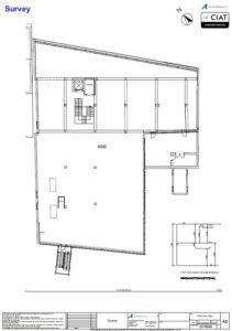
A1 Flat conversion design in Stroud AllSurveyScheme Survey Ground Floor Plan Survey First Floor Plan Survey Side Elevations Survey Rear Elevations Scheme Lease Plan Scheme First Floor Plan Scheme Roof Plan Scheme Section Scheme Rear Elevations Scheme Sectional Elevation Scheme Front View Scheme Rear View Scheme View of Roof Floor plans, elevations and perspective views of the conversion of the first floor of a listed office building in Stroud into 8 self-contained two bedroom flats. Flat conversion design in Stroud