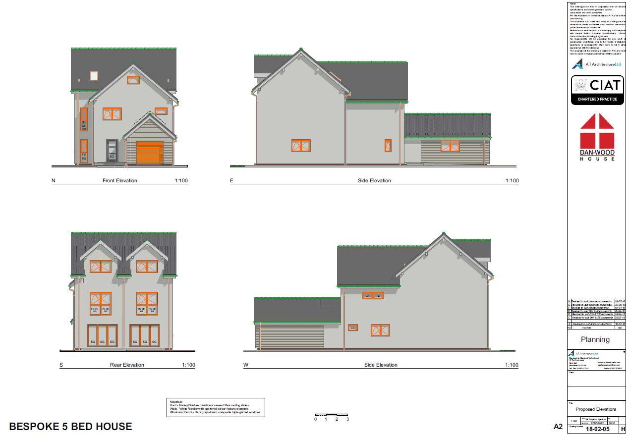
BESPOKE TIMBER FRAME HOME DESIGN
A bespoke timber frame home design which we specifically designed to fit onto an irregular shaped building plot between existing adjacent houses.
Our client choose to have a Dan-Wood build construction, we liaised carefully with Dan-Wood a Polish timber framed company to comply with all of their constructional and structural design constraints.
We obtained all their permission’s both for planning and building regulations.
However, our clients changed their mind’s and decided not to go ahead with the build, and bought a new house instead.







