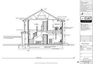
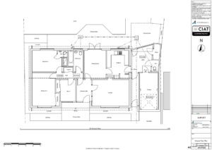
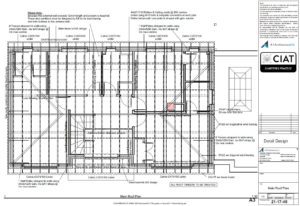
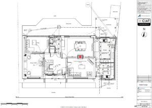
Bungalow to House Conversion Design AllSurveySchemeDetail Survey Ground Floor Plan Survey Elevations Survey Front View Survey Rear View Scheme Ground Floor Plan Scheme First Floor Plan Detail Front View Detail Rear View Detail Ground Floor Plan Detail First Floor Plan Detail MEP Ground Floor Plan Detail MEP First Floor Plan Detail Joist Plan Detail Foundation Plan Detail Roof Plan Detail Section A Detail Section B Detail Section C Detail Section D Detail Section E Detail Section F Load More Our client wanted us to convert their bungalow in Cheltenham into a large house.We produced a contemporary modern design house and obtained all permissions and consents. A unique Bungalow to house conversion design