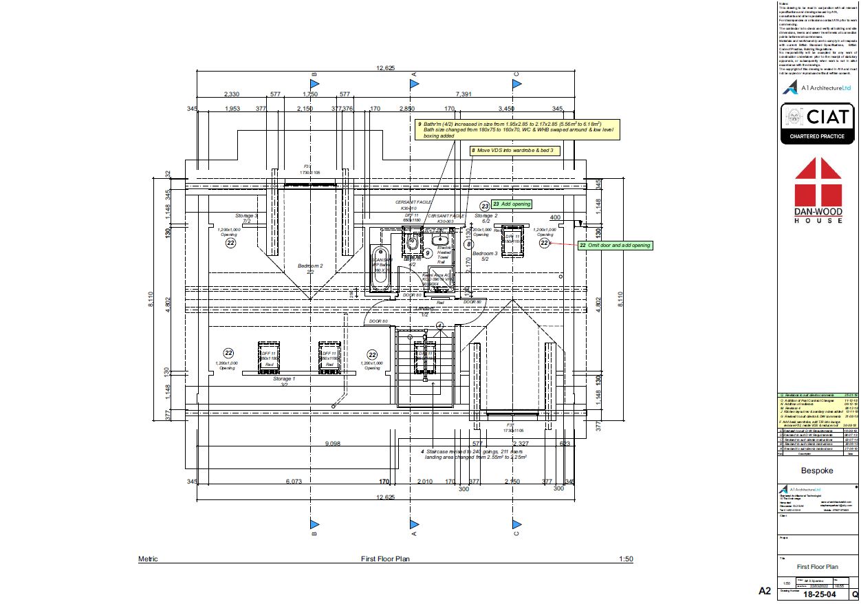
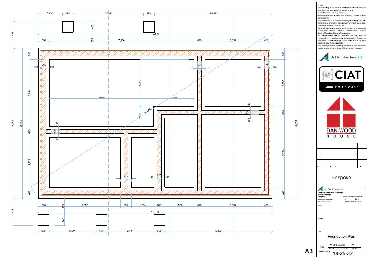
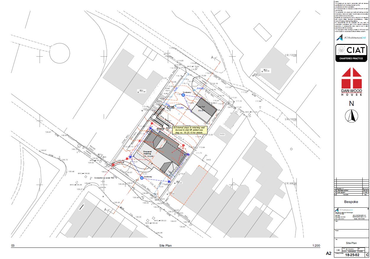
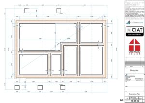
Dan-Wood timber frame home
Our client initially had a design from another timber frame manufacture, however their cost to build was excessive, but he still wanted the design, albeit revised and adapted to suit Dan-Wood construction details, which we did and obtained all necessary permissions, including consent from the originator of the initial design.










