Feasibility House designs in Suffolk
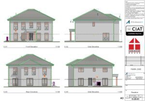
House feasibility design plans in for a site in Suffolk – We were engaged to determine if a standard Dan-Wood house type would get Planning Permission for this large impressive house design. However, due to the location of the site the Planners refused permission. You will probably note the detailed state of our drawings, although for a feasibility design to check with the Planners, Dan-Wood requires a complete set of detailed drawings to enable them to provide a fixed quotation for their build.










