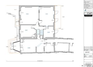
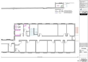
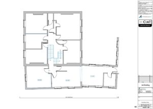
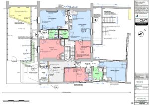
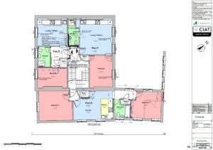
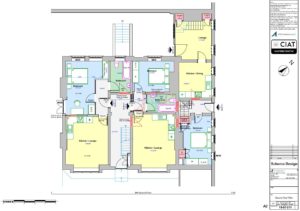
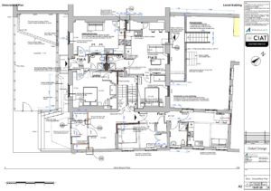
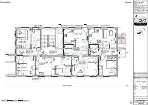
Flat conversion design Gloucester
- All
- Survey
- Scheme
- Detail
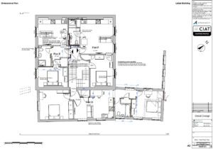
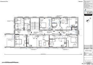
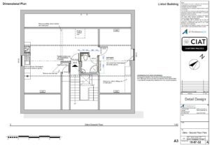
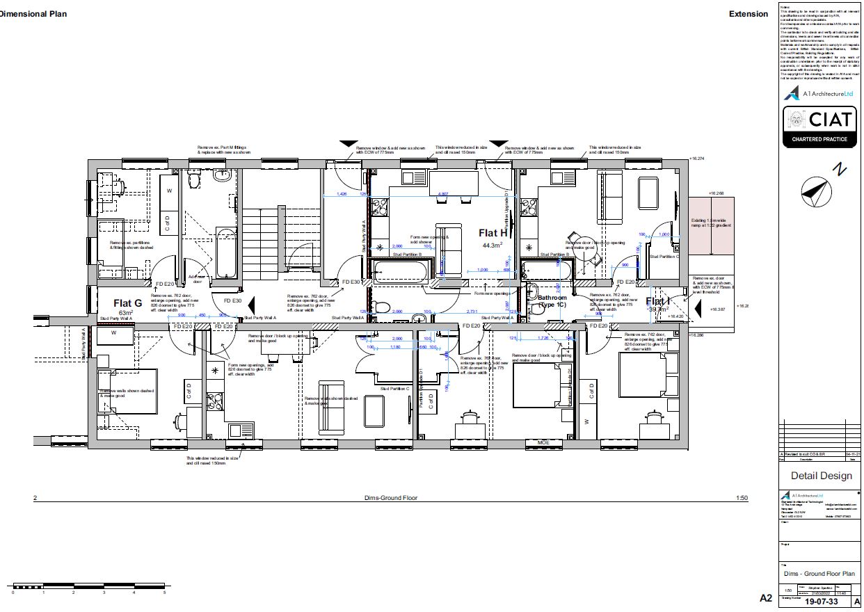
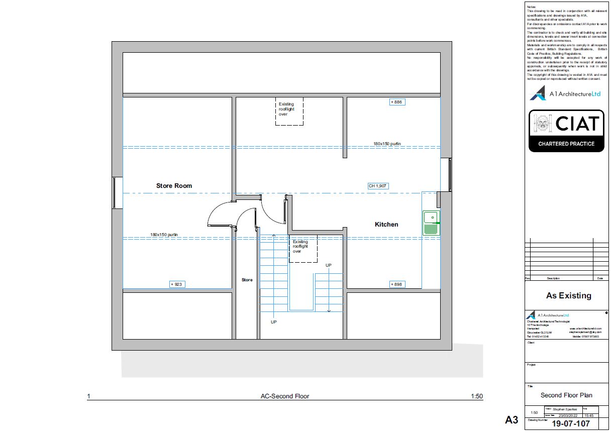
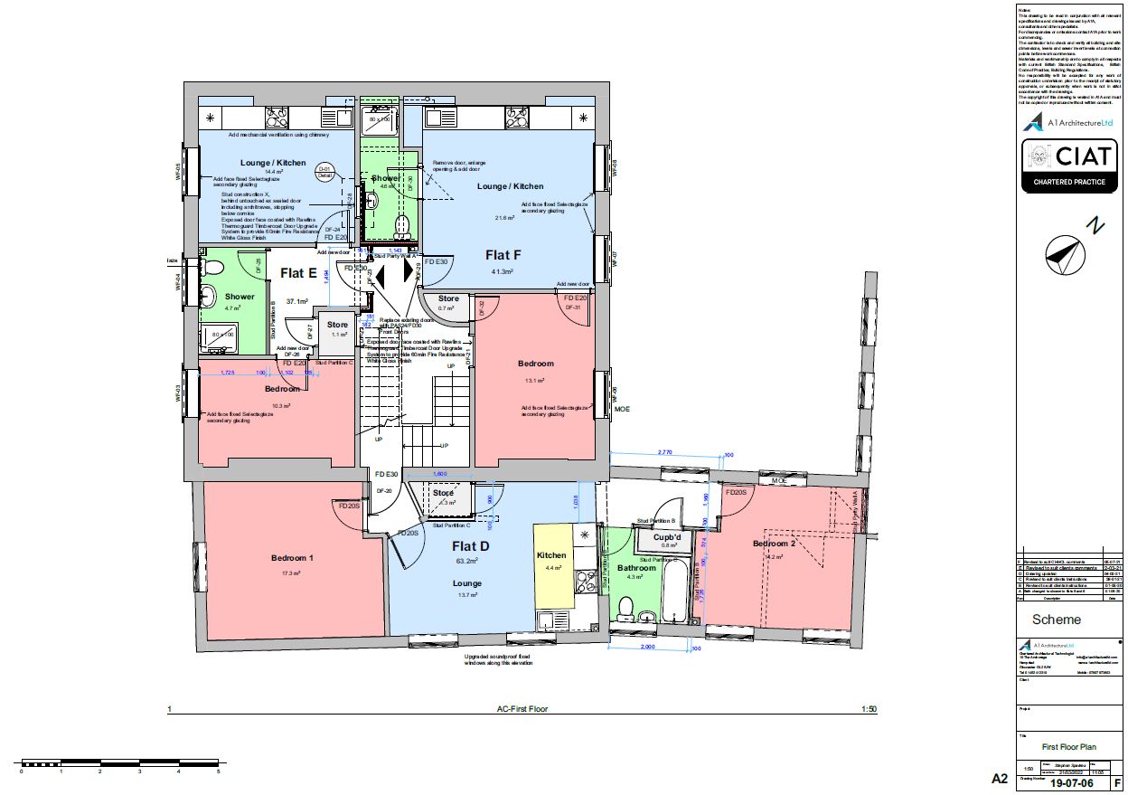
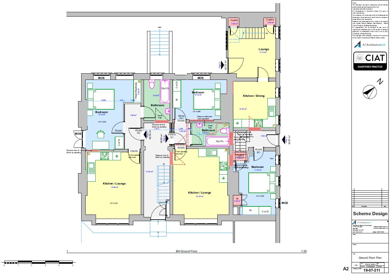
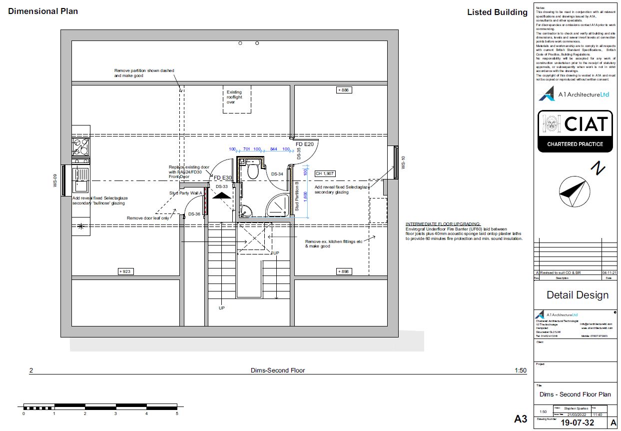
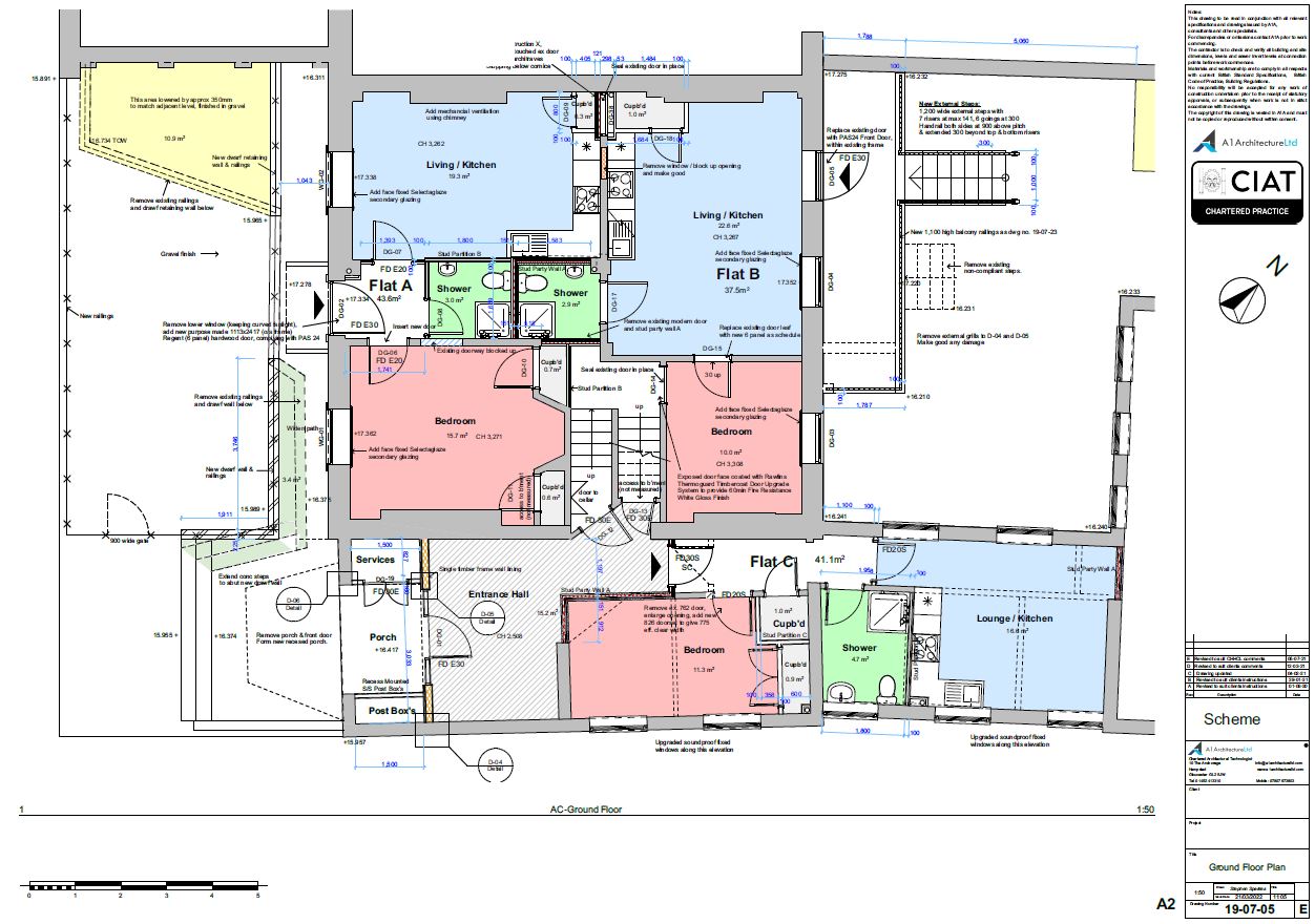
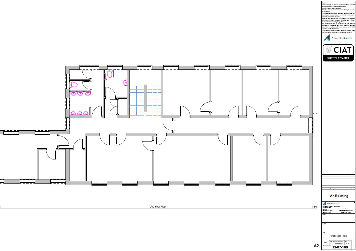
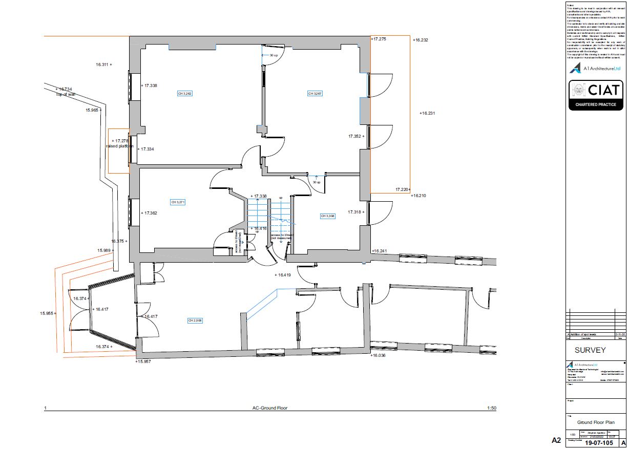
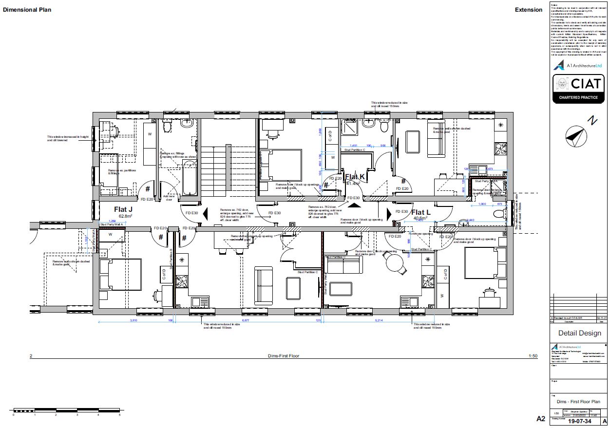
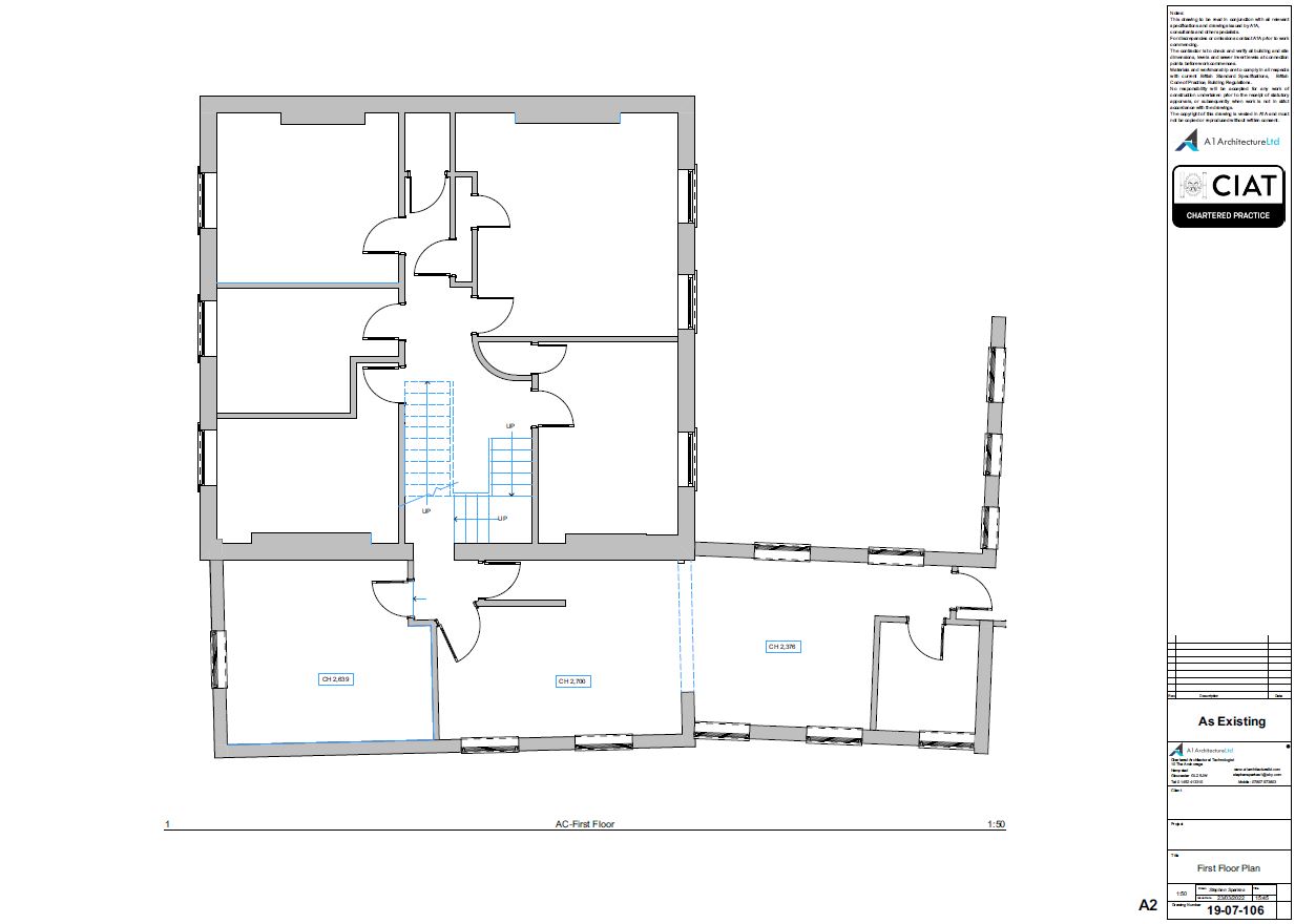
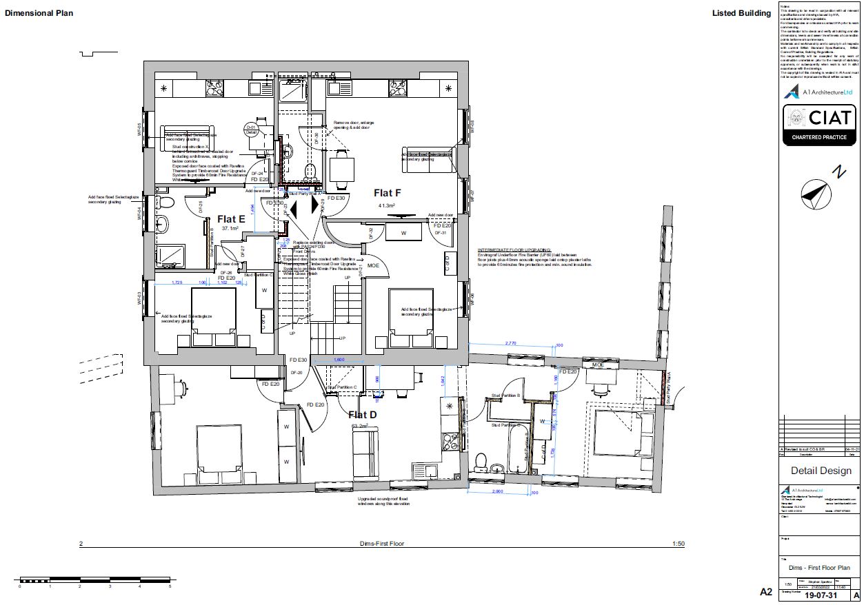
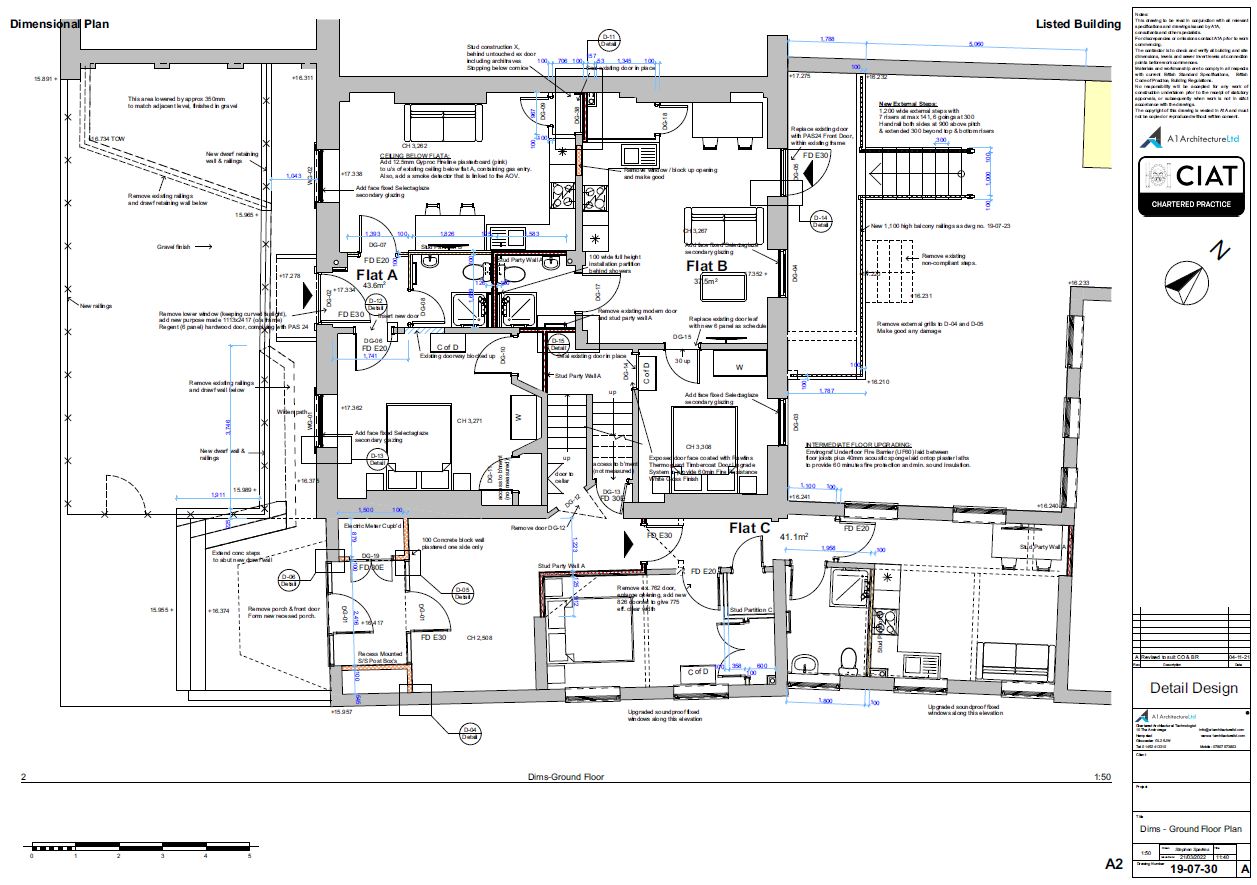
We were commissioned to carry out a full measured building survey, and provide all drawings and documentation to a Listed office buildings that was going to be converted into a total of 19 flats in Gloucester town center. We obtained Planning, Listed and Building Regulations approvals.





















