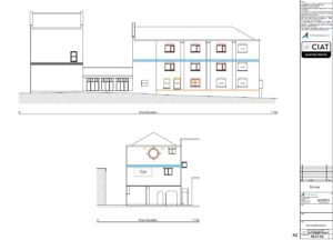
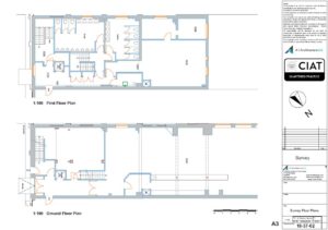
Flat conversion plans Gloucester

The conversion of a vacant restaurant and shop unit into six self contained flats in the town center of Gloucester. We were engaged to carry out a full measured building survey, produce as existing drawings, scheme and detail design drawings and obtain Planning Permission and Building Regulation approvals for this project – which is now completed.

Flat conversion plans Gloucester