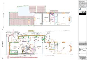
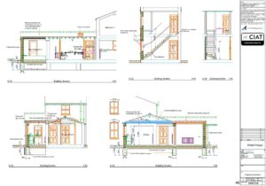
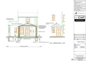
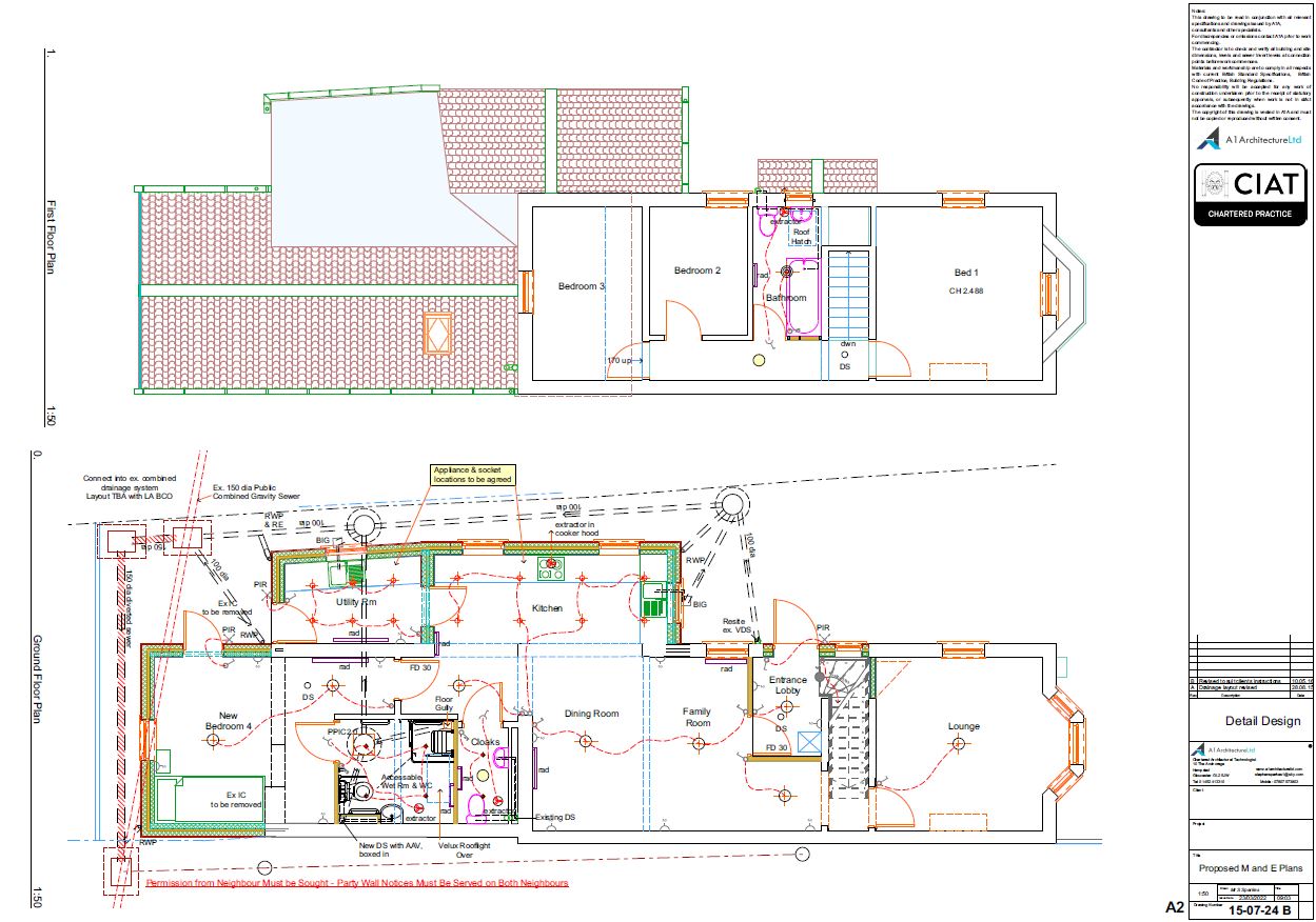
Home adaption and extension design Gloucester
- All
- Existing
- Proposed
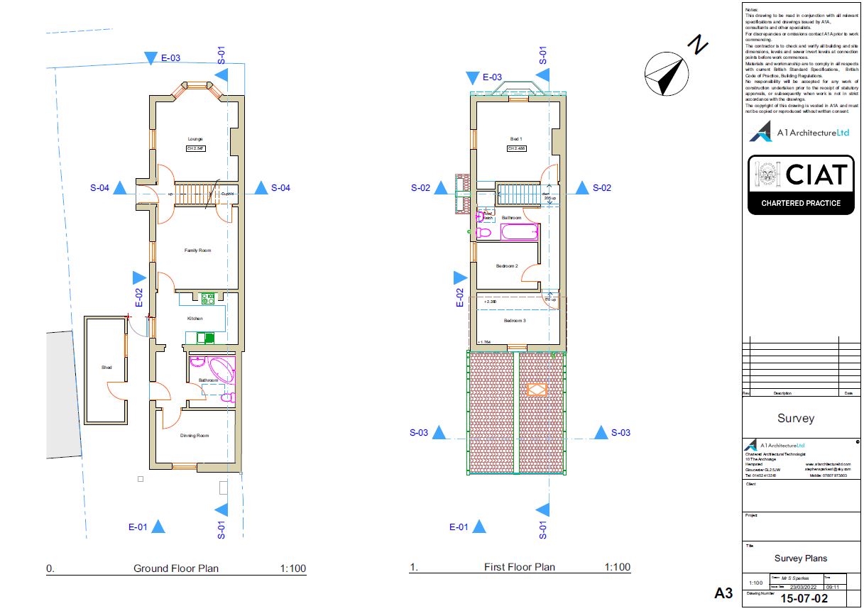
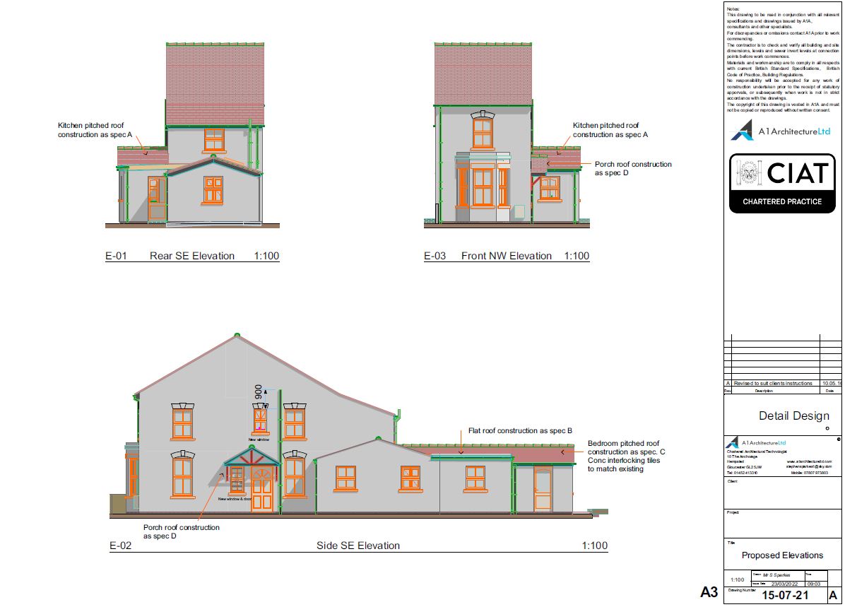
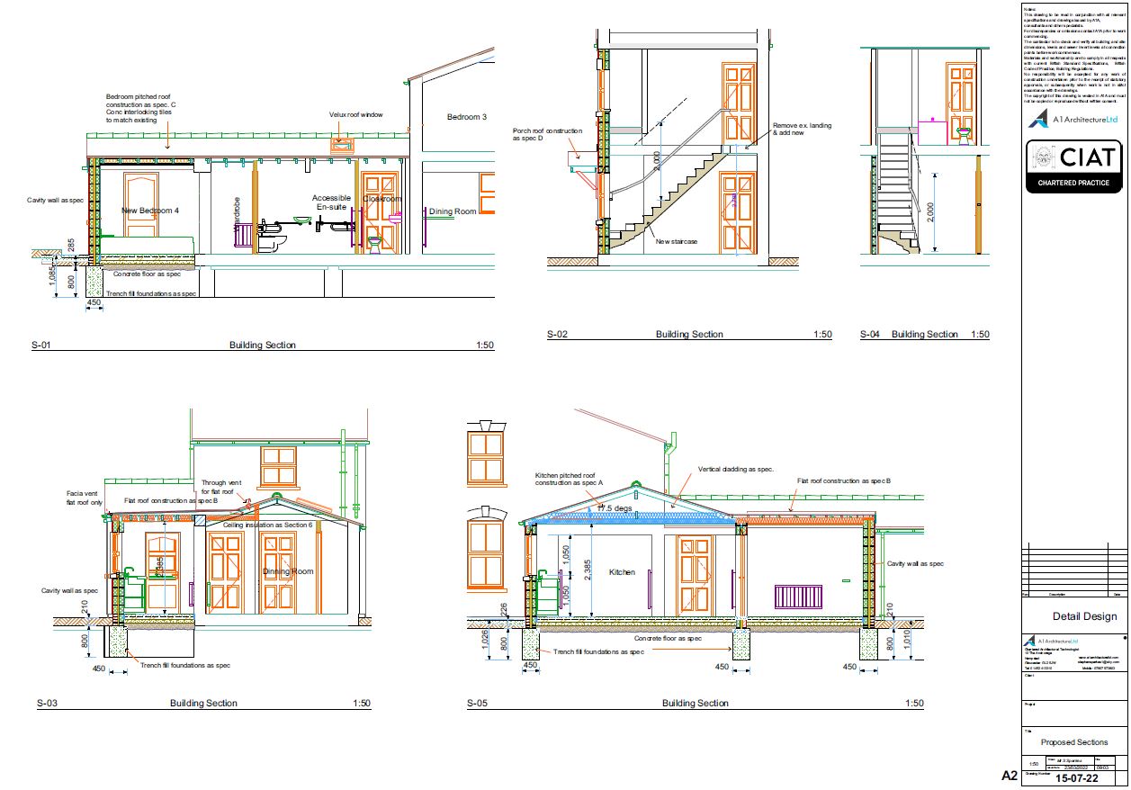
Our client a home owner required alterations and extension to their home in Gloucester for their disable child. We did this project for free and their was an article written in the Citizen, our local newspaper.














