House design building plans beausale
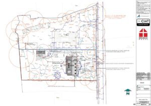
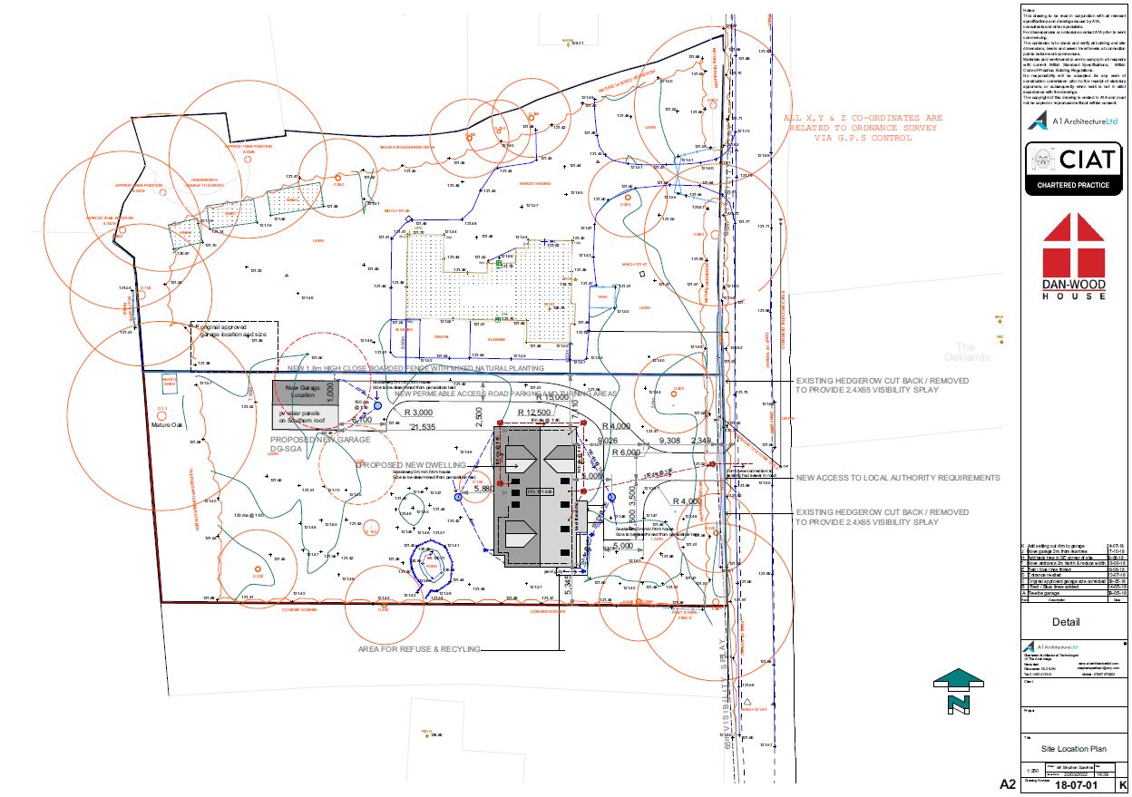
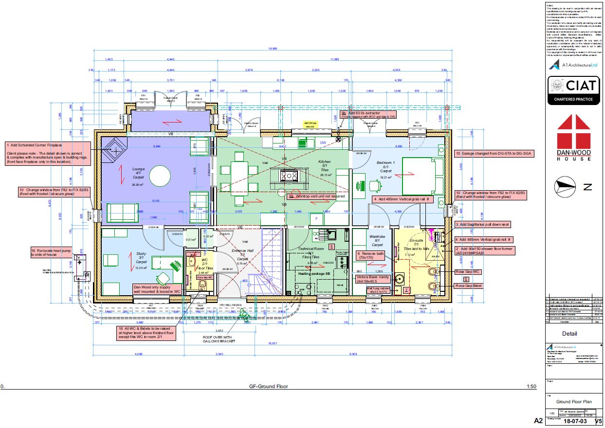
Our client commissioned us to design a Dan-Wood chalet style dwelling house on their property adjacent to their existing house in Beausale.
They provided us with a set of paper drawings for a design that was approved for Planning Permission by another Architect.
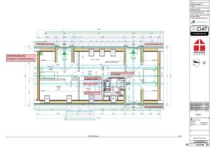
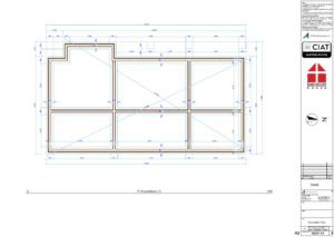
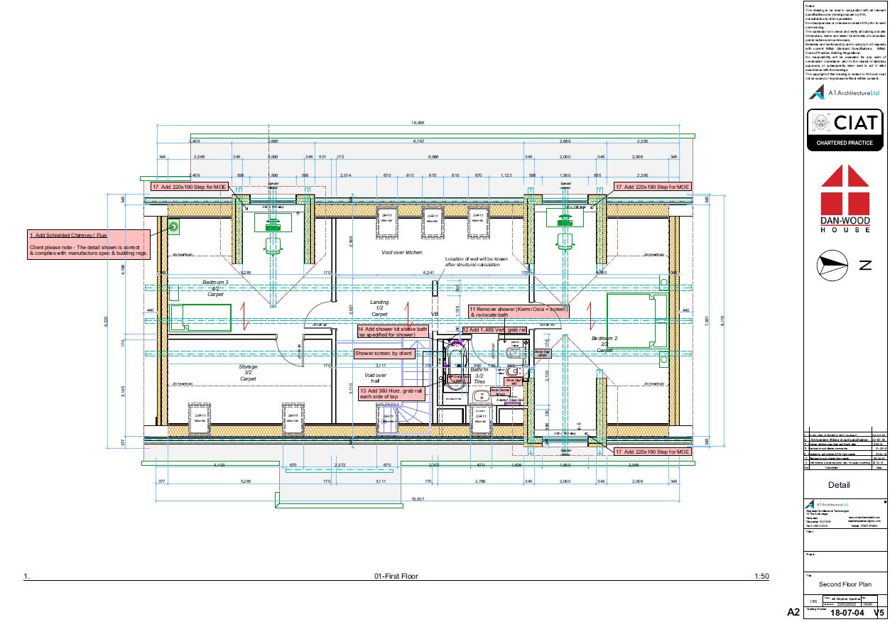
We were engaged to revise this design, to comply with Dan-Woods details and obtain a new Planning Permission and to produce constructional drawings and obtain Building Regulations which we successfully obtained.
Please note that A1 Architecture Ltd was employed directly with our client and never been employed by Dan-Wood, we are only authorized to work using their designs for and on behalf of their clients.










