Loft conversion plans Gloucester
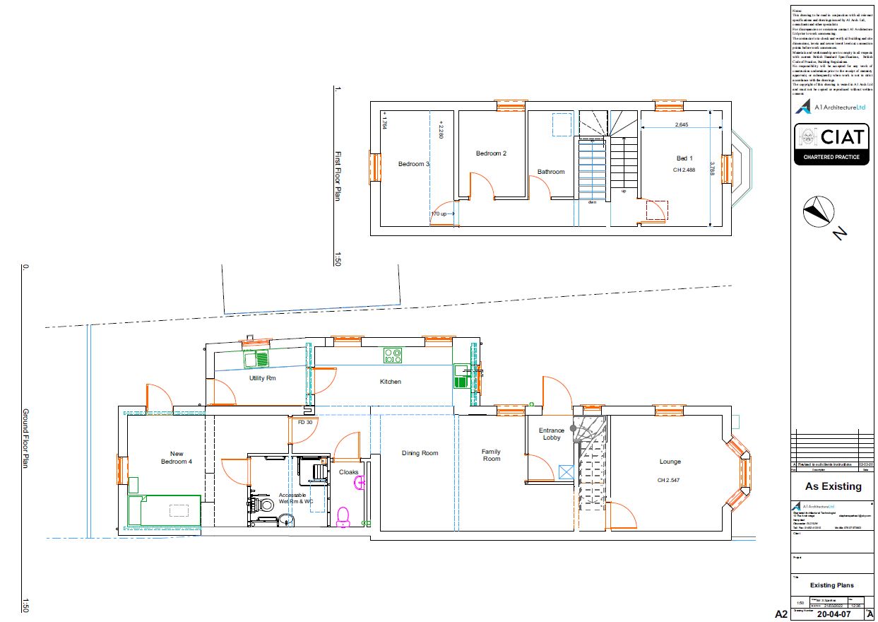
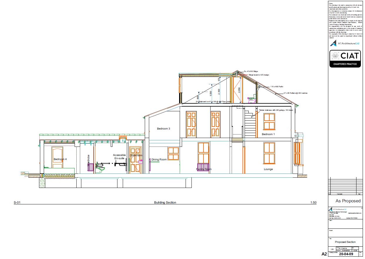
We originally designed an extension with alterations to suit a disabled child a number of years before for this client – you can see that example here too. This however was a further extension to convert the loft space to add a bedroom, conversion which to a detached house in Gloucester. We obtained both Planning Permission and Building Regulation approvals.










