Measured Building Survey Gloucester

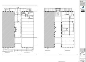
We were commissioned to carry out a measured survey of a commercial building in Gloucester Docks.

The project was for a client who had not fully taken over the leasehold of the building and therefore the proposed new scheme which included renovations and alterations to the lower two floors of this building did not go ahead. We would have carried out the proposed new design.

Measured Building Survey Gloucester