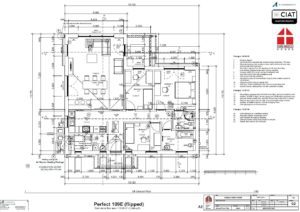
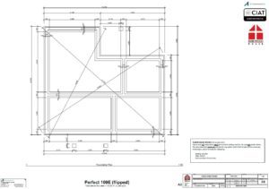
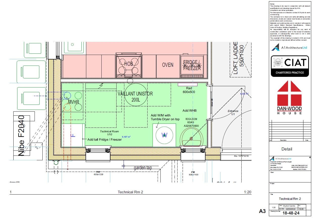
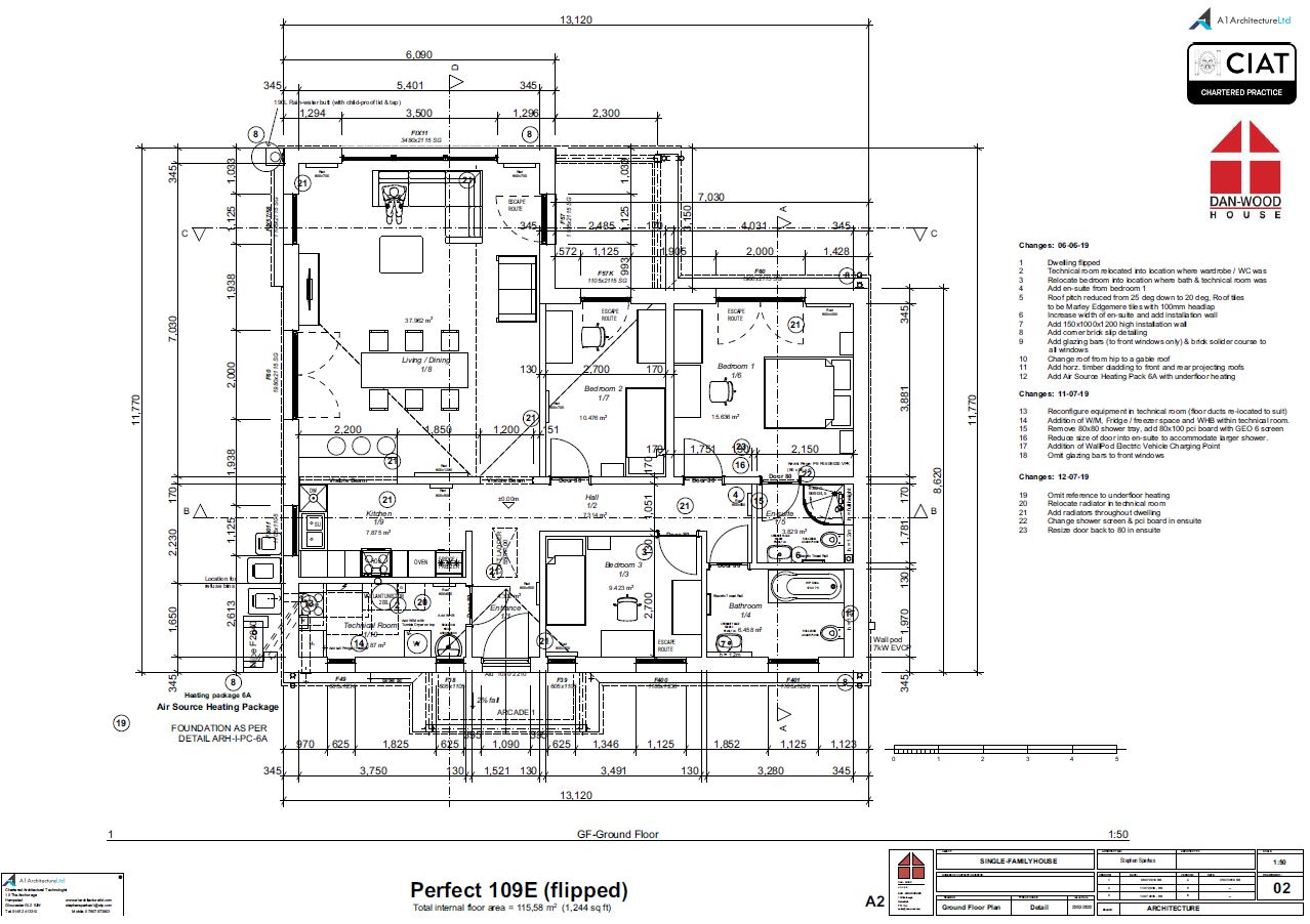
New Build bungalow plans Oxhill
Our client selected a standard Dan-Wood bungalow house type which we had to revise to suit the location and the Planners requirements, this included brick corner detailing to match adjacent nearby dwellings. All was approved and completed on site.









