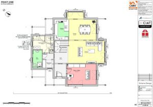
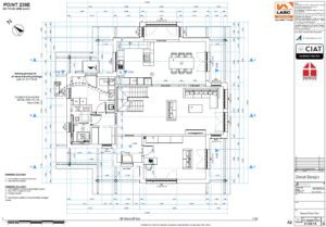
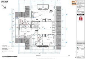
New Build house design Wales
- All
- Scheme
- Detail
New Build house design Wales
Our client commissioned us to design a Dan-Wood chalet style dwelling house on their property adjacent to their car business in Wales.
The site had several issues to deal with, firstly it is adjacent to an old coal mine, had Japanese knot weed, and large difference in levels to the adjacent property and not in a residential area.
We systematically resolved these issues and after 6 months, the application was approved.
We then obtained full Building Regulation approval to allow for commencement of work.


















