Office conversion into flats Gloucester
- All
- Survey
- Scheme
- Detail
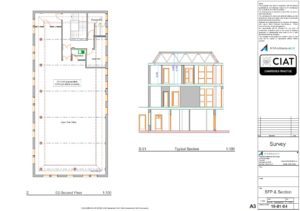
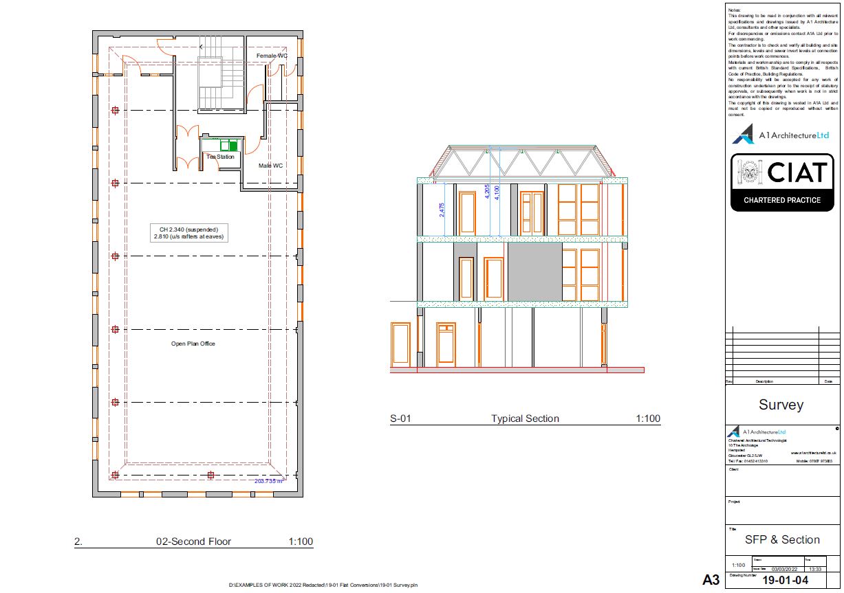
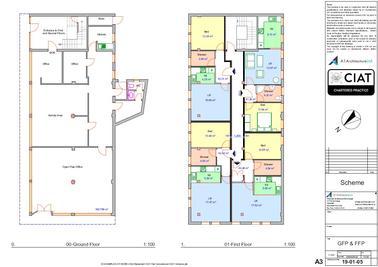
Office conversion into flats Gloucester – Two Listed office buildings converted into a total of 19 flats in Gloucester. Due to restricted headroom on the top floor we had to raise the roof slightly. In addition we had to provide a unique fire escape solution due to the excessive travel distances. However whilst liaising with specialists we obtained the necessary Planning, Listed and Building Regulations approvals.


















