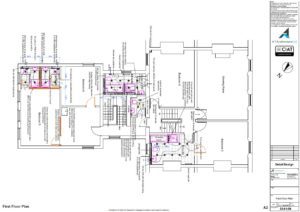
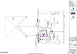
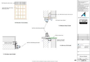
Office to residential conversion design Gloucester
Listed office building converted back into a large home. Ironically, this is Stephen’s first office when he worked at Peter Wolstenhome and Partners – Chartered Architects, in Gloucester – his photo shows him at his drawing board in this building.











