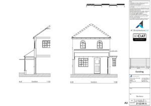
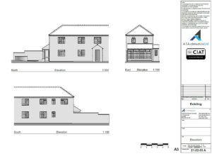
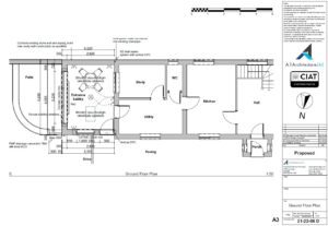
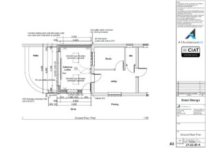
Porch extension design in Gloucester
- All
- Survey
- Scheme
- Detail
We were commissioned to design a large front entrance lobby / porch to a cottage in Gloucester. We obtained all Permissions, our client was extremely happy with our design and we received a good testimonial and review from these clients, they told me that they use this space continually.
















