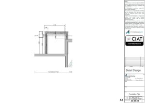
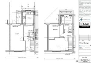
Home extension Plans Gloucester

Our client originally bought this property with space to the side. We were initially commissioned to design a linked house and you can see that design here on this website.  After building that house my clients then wanted to enlarge the original house with an improved kitchen and bathroom as can be seen on our plans.

Two storey home extension design Gloucester