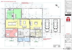
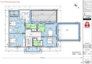
Unique house design in Lytham,
A totally bespoke, one off and unique house design specifically designed to our clients detailed brief, with several free revisions and complying with Dan-Woods constructional details, which enabled them to provide a detailed and fixed quote for there build.
This was a feasibility architectural house design and our client was impressed with the design.








